Pronat / Për shitje / Vilë

Vile Drinmadhe Olea Rezidenc


Telefononi për çmim

Përshkrimi i Pronës

Vilë në Drimadhë – Rezidenca OLEA

Vila ndodhet në një nga zonat më të bukura dhe të kërkuara të bregdetit shqiptar, në Drimadhë, brenda kompleksit rezidencial elitar OLEA, ofrohet për shitje një vilë moderne dhe plot stil.

Karakteristikat e Vilës:
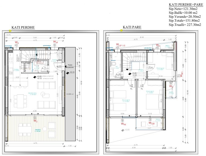
Sipërfaqja Totale e Ndërtuar: 151.80 m²
Sipërfaqja e Truallit: 227.30 m²
Sipërfaqja Neto : 121.30 m²
Sipërfaqja Ballkon : 10 m²
Sipërfaqja Verand : 20.50 m²
Ndërtim 2-katësh, i organizuar në mënyrë funksionale dhe komode
Numri i Dhomave: Vila ofron ambiente të bollshme banimi, me ndarje të qarta
2 Banjo të plota, të mobiluara me cilësi të lartë
Mobilim bashkëkohor, me detaje elegante dhe pajisje moderne
Oborr privat dhe hapësirë gjelbëruese, ideale për relaksim apo aktivitete në natyrë

Pozicion ideal – duke ofruar pamje të mrekullueshme dhe qetësi absolute në një zonë ekskluzive dhe të sigurt.

Kompleksi OLEA është i mirorganizuar, me infrastrukturë të rregullt, siguri 24/7 dhe ambient të mirëmbajtur, duke e bërë këtë vilë një mundësi të shkëlqyer për banim, pushime apo investim.

Detajet e Pronës

Qyteti:
Vlorë
Zona:
Drinmadhe Dhermi 'Olea Rezidenc'
Lloji:
Vilë
Tipi:
Për shitje
Dhoma:
3+1
Banjo:
2
Statusi:
E re
Çertifikatë:
Po
Disponueshmëria:
Po
Sipërfaqe Neto:
121.3 m²
Sipërfaqja Totale:
151 m²
Chat with us on WhatsApp